Affitto Locale Commerciale Lecco | Chicercacasa.it
Locale Commerciale

700,0

Affitto Locale Commerciale Lecco

Via Papa Giovanni XXIII, Lecco

Descrizione

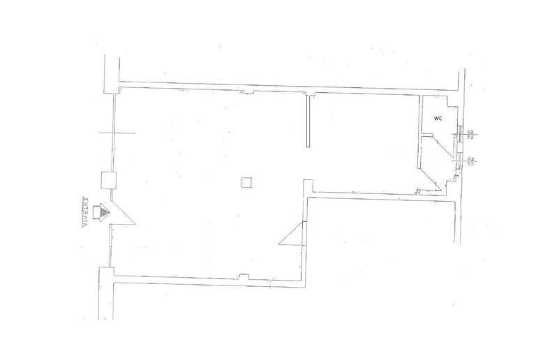
Classe energetica: e - lecco - castello, in posizione di forte passaggio, affitasi negozio con 2 vetrine fronte strada, composto da due locali oltre bagno per una superficie totale di circa 60 mq commerciali, ideale per un'attività di vendita o studio professionale. Il negozio è privo di canna fumaria quindi non adatto per un'attività che necessita dello scarico dei fumi (esempio: pizzeria, rosticceria, panificio). Subito disponibile! questa descrizione ha valore puramente indicativo e non costituisce elemento contrattuale. Per info: edilcasa lecco via sassi 40 – tel. 0341/353096 - potete contattarci anche tramite "whatsapp" inserendo il n. 0341353096 nei vostri contatti! email: [email protected] – www.edilcasalecco.it<br><br>l'ufficio edilcasa si trova a lecco in via s. Sassi, 40 – angolo via cattaneo (centro città, nelle vicinanze della stazione fs), è aperto dal lunedì al venerdì negli orari 9:00 – 12:30 e 14:30 – 19:30, il sabato dalle 9:00 alle 12:30. Professionalità, serietà, dinamicità e grande conoscenza del territorio sono la base dell'attività dell’agenzia edilcasa di lecco, con un costante investimento nei migliori mezzi pubblicitari disponibili oggi nel settore immobiliare.

 

Dettagli

Classe Energetica
E
IPE
140 kW/mc
Mq
60
Alt. sotto trave
-
Area Esterna
-
Licenza
-
Parcheggi priv.
-
Parcheggi pubb.
-
Importo Affitto
-
Incasso
-
Tipo Incasso
-
Rich. Valore
-
Locali
-
Tipo proprietà
Non specificato

EDILCASA Immobiliare

Email: [email protected] - Telefono: 0341353096

Indirizzo

via S.Sassi 40

Sito Web

EDILCASA Immobiliare

Orari di apertura

non presenti.

17ALTRIANNUNCISIMILI

85.000

Lecco

 

Plurilocale

LECCO, via Campanella località Malavedo, porzioni di case indipendenti disposte su tre livelli. PIANO TERRA, tre box, ingresso ripostiglio e

mq. 224 locali 7

EDILCASA Immobiliare

75.000

Lecco

Centro

Lecco, Via Pa...

Lecco, Via Parini, monolocale arredato posto al piano terra/rialzato composto da soggiorno/camera, angolo cottura, bagno finestrato con docc

mq. 37 locali 1

My Place Italy

75.000

Lecco

Centro

Lecco, Via Pa...

Lecco, Via Parini, monolocale arredato posto al piano terra/rialzato composto da soggiorno/camera, angolo cottura, bagno finestrato con docc

mq. 37 locali 1

My Place Italy

75.000

Lecco

Centro

Lecco, Via Pa...

Lecco, Via Parini, monolocale arredato posto al piano terra/rialzato composto da soggiorno/camera, angolo cottura, bagno finestrato con docc

mq. 37 locali 1

My Place Italy

110.000

Lecco

Laorca

Lecco, Zona L...

Lecco, zona Laorca, proponiamo in vendita un luminoso trilocale di 65 mq con giardinetto privato. Posto al primo piano l'appartamento è comp

mq. 65 locali 3

Agenzia Immobiliare Metro…

110.000

Lecco

Olate

Trilocale Con...

LECCO Olate - In zona tranquilla ed immersa nel verde, inserito in palazzina, proponiamo appartamento posto al piano terra e composto da ing

mq. 90 locali 3

IMMOBILIARE NEROSUBIANCO

99.000

Lecco

Pescarenico

Trilocale Con...

LECCO Pescarenico - In zona comoda con tutti i servizi della città, inserito in piccola palazzina di sole unità immobiliari, proponiamo appa

mq. 81 locali 3

IMMOBILIARE NEROSUBIANCO

99.000

Lecco

Pescarenico

Trilocale Con...

LECCO Pescarenico - In zona comoda con tutti i servizi della città, inserito in piccola palazzina di sole unità immobiliari, proponiamo appa

mq. 81 locali 3

IMMOBILIARE NEROSUBIANCO

chicercacasa
quilatrova