Affitto Negozio Orio Al Serio | Chicercacasa.it
Negozio 1056 Mq Orio Al Serio con visibilità dall'autostrad

8.200,0

Affitto Negozio Orio Al Serio

via Aeroporto, Orio al Serio

Descrizione

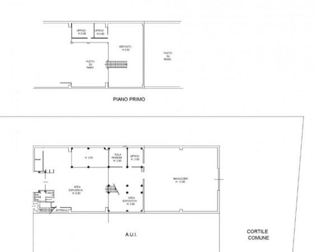
Rga immobilare propone a orio al serio con visibilità dall'autostradaa un negozio di 1056mq con possibilità di raddoppiare la superficie di vendita creando un soppalco speculare al piano terra. Attualmente la metratura è così suddivisa: 806 mq al piano terra e 250mq al piano soppalco, internamente il negozio è alto 8 m.

 

Dettagli

Classe Energetica
F
IPE
152,0 kW/mc
Mq
1056
Alt. sotto trave
0.00
Area Esterna
0
Licenza
-
Parcheggi priv.
-
Parcheggi pubb.
-
Importo Affitto
8200
Incasso
-
Tipo Incasso
-
Rich. Valore
-
Locali
3
Tipo proprietà
Intera proprietà

RGA Immobiliare

Email: [email protected] - Telefono: 3200823705

Indirizzo

Via A. Pacinotti

Sito Web

RGA Immobiliare

Orari di apertura

non presenti.

1ALTRIANNUNCISIMILI

400

Castelli Calepio

 

Castelli Cale...

RGA Immobiliare propone ufficio di 90mq ubicato in posizione fronte strada e con numerosi parcheggi riservati ai clienti. L’ufficio è posizi

mq. 100 locali 3

RGA Immobiliare

chicercacasa
quilatrova