Affitto Ufficio Grassobbio | Chicercacasa.it
Ufficio - Rif. 2157

3.600,0

Affitto Ufficio Grassobbio

Via Orio al Serio 29, Grassobbio

Descrizione

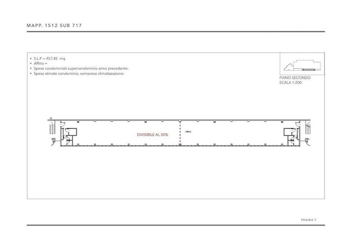
Situato in prossimità dell'aeroporto di orio al serio, fronte autostrada, all'interno di tre distinti edifici direzionali disposti su più livelli, è disponibile al 2° un ufficio di 457 mq in open space. L'ufficio è dotato doppio ingresso, di due blocchi servizi, con accesso per disabili, ed è equipaggiato con pavimento flottante, impianto elettrico base, impianto di riscaldamento-raffrescamento con rilevatori di consumo e trattamento dell'aria primaria. Sono disponibili posti auto coperti riservati e un'ampia area di parcheggio privato ad uso pubblico.

 

Dettagli

Classe Energetica
A+
IPE
0 kW/mc
Mq
457
Alt. sotto trave
-
Area Esterna
-
Licenza
-
Parcheggi priv.
-
Parcheggi pubb.
-
Importo Affitto
-
Incasso
-
Tipo Incasso
-
Rich. Valore
-
Locali
-
Tipo proprietà
Non specificato

Lascari Servizi Immobiliari

Email: [email protected] - Telefono: 035 234162

Indirizzo

Via A. Previtali, 20

Sito Web

Lascari Servizi Immobiliari

Orari di apertura

non presenti.

23ALTRIANNUNCISIMILI

1.700

Bergamo

Redona

Ufficio - Rif...

Posizione strategica per la vicinanza del Rondò delle Valli con rapidi collegamenti alla viabilità principale, alle linee tramviarie TEB e

mq. 92 locali -

Lascari Servizi Immobilia…

1.500

Bergamo

Martinella

Ufficio

Bergamo Circonvallazione delle Valli, (flusso di oltre 50.000 veicoli negli orari di punta) a lato del Chorus Life, il modello di città inno

mq. 172 locali -

Oromedia Srl Unipersonale

1.800

Bergamo

 

Ufficio

Prestigioso ufficio direzionale arredato. In pieno centro, in palazzina signorile, ufficio direzionale di mq. 120 commerciali, completamente

mq. 120 locali 4

DDstudio

1.500

Bergamo

Borgo Palazzo, Centro, S…

Negozio Con D...

Fox Agency propone, in zona centrale e prestigiosa, negozio di mq. 70 con due ampie vetrine fronte strada oltre magazzino interrato e serviz

mq. 70 locali 2

Fox Agency - Agility in R…

1.500

Bergamo

Borgo Palazzo, Centro, S…

Negozio Con D...

Fox Agency propone, in zona centrale e prestigiosa, negozio di mq. 70 con due ampie vetrine fronte strada oltre magazzino interrato e serviz

mq. 70 locali 2

Fox Agency - Agility in R…

1.633

Bergamo

Borgo Palazzo, Centro, S…

A287 Borgo Pa...

A287 Bergamo Borgo Palazzo in nuova e signorile costruzione negozio/ ufficio piano terra di 155mq con 4 vetrine, 4 stanze antibagno e bagno.

mq. 155 locali 2

EYNARD IMMOBILIARE srl

2.000

Bergamo

SAN BERNARDINO, SAN TOMA…

Negozio

In zona centrale, proponiamo in locazione locale commerciale di ampia metratura, dotato di 5 vetrine fronte strada, ideali per garantire mas

mq. 105 locali 4

Immobiliare Mangili

1.500

Bergamo

università/biblioteca

Affittasi Neg...

Negozio 3 vetrine, fronte strada davanti la biblioteca Tiraboschi/Università prospiciente l'incrocio Via Previtali e Via Baschenis, così com

mq. - locali 3

Area Immobiliare

chicercacasa
quilatrova