Vendita Bilocale Milano | Chicercacasa.it
Bilocale

335.000

Vendita Bilocale Milano

via monte rosa, Milano

Zona:

Fiera

Descrizione

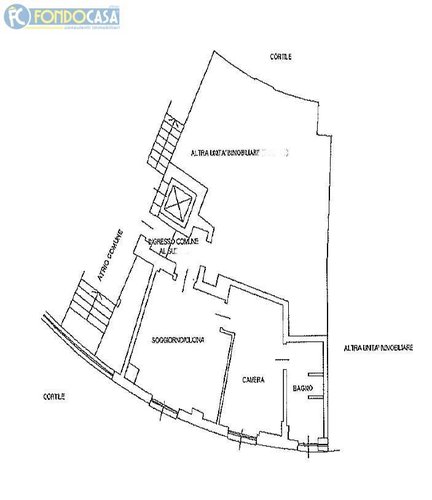
Classe energetica: e - epgl,nren: 269,33 kwh/m² - l'appartamento in vendita si trova adiacente a city life, vicinanze via cenisio comodo accesso all'autostrada, una delle aree più prestigiose e dinamiche di milano.<br>si tratta di un'occasione unica per chi desidera vivere in una delle zone più esclusive della città.<br>l'immobile, di circa 50 metri quadrati, è completamente libero al rogito e si presenta in ottimo stato di conservazione.<br>l'appartamento è composto da due locali, tra cui una luminosa e spaziosa camera da letto, e un bagno moderno e raffinato.<br>la cucina si affaccia su un ampio soggiorno, ideale per trascorrere piacevoli momenti di relax e convivialità.<br>le spese condominiali ammontano a circa 200 euro al mese e comprendono i servizi di pulizia e manutenzione delle parti comuni.<br>l'impianto di riscaldamento è centralizzato, garantendo un'ottima efficienza energetica e un notevole risparmio sulle bollette.<br>l'appartamento si trova in una posizione strategica, a pochi passi dalla fiera di milano e da importanti vie commerciali, ristoranti e servizi di ogni genere.<br>grazie alla sua vicinanza con la metropolitana e le principali vie di comunicazione, è facilmente raggiungibile da ogni parte della città.<br>questa è quindi un'opportunità imperdibile per chi desidera un appartamento di lusso e di prestigio, in una delle zone più ambite della città.<br>ideale sia come residenza principale che come investimento immobiliare.

 

Dettagli

Tipologia
Appartamento
Mq
50
Soffitta
Non specificato
Bagni
1
Balconi
0
Box
-
Arredamento
Non presente
Spese cond.
200€ Non specificato
Num.posti auto
0
Piano
0
Camere da letto
1
Giardino
Si, Privato
Ascensore
Non specificato
Riscaldamento
Centralizzato
Locali
2
Tipo proprietà
Non specificato
Stato
Ottimo
Vendita/affitto
Vendita
Terrazzo
No
Cucina
Non specificato
N.Piani Edificio
0
Portineria
Si
Classe Energetica
E
IPE
269,33 kW/kWh/m²

COMO

Email: [email protected] - Telefono: 031265057

Indirizzo

via Milano 231

Fax

031264906

Sito Web

COMO

Orari di apertura

non presenti.

4ALTRIANNUNCISIMILI

345.000

Milano

 

Quadrilocale

Proponiamo in vendita ampio 4 locali di 127 mq, in stabile signorile con servizio di portineria, nelle immediatezze della nuova MM5 Lilla, d

mq. 127 locali 4

350.000

Milano

BRESSO / NIGUARDA / SUZZ…

Trilocale

In edificio anni '90, in un'oasi verde rappresentata dal fiorito giardino condominiale e dall'immenso Parco Nord, sul quale si affaccia la c

mq. 105 locali 3

269.000

Milano

BRESSO / NIGUARDA / SUZZ…

Trilocale

In zona residenziale tranquilla, nei pressi del Parco Nord, da tutti i servizi offerti dal Quartiere Niguarda e dai mezzi di superficie (tra

mq. 95 locali 3

325.000

Milano

San Siro, Trenno

Residenza Gor...

La nuova residenza Gorlini 28, una palazzina di sole 9 unità, nascera' incastonata in uno degli ultimi polmoni verdi della citta': il PARCO

mq. 94 locali 3

Coifil srl

chicercacasa
quilatrova