Vendita Bilocale Sesto Calende | Chicercacasa.it
Sesto Calende (VA) - Bilocale ristrutturato

70.000

Vendita Bilocale Sesto Calende

via Vittorio Veneto, Sesto calende

Descrizione

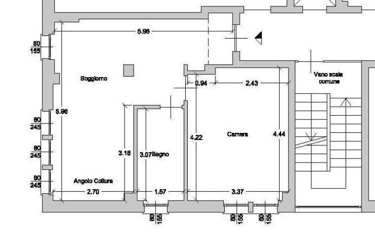
Sesto calende (va) proponiamo appartamento bilocale appena ristrutturato a due passi dal centro. Ubicato al piano primo di un condominio ben tenuto e ordinato, limmobile si compone da ingresso, soggiorno/salotto con angolo cottura, camera da letto matrimoniale, bagno con doccia. A completare la proprietà cantina al piano interrato. Impianto di riscaldamento centralizzato con valvole termostatiche, tapparelle motorizzate, cassaforte, giardino condominiale, servito da impianto ascensore. Posti auto pubblici nelle immediate vicinanze. Spese condominiali contenute. Visitate il nostro sito www.realtàimmobiliare.it per visionare la scheda completa dell'immobile.

 

Dettagli

Tipologia
Appartamento
Mq
50
Soffitta
Non specificato
Bagni
1
Balconi
0
Box
0
Arredamento
Non presente
Spese cond.
100€ Non specificato
Num.posti auto
0
Piano
1
Camere da letto
1
Giardino
Si, Privato
Ascensore
Non specificato
Riscaldamento
Centralizzato
Locali
2
Tipo proprietà
Non specificato
Stato
Non specificato
Vendita/affitto
Vendita
Terrazzo
No
Cucina
Non specificato
N.Piani Edificio
1
Portineria
Si
Classe Energetica
F
IPE
192,0 kW/mc

Email: - Telefono:

Indirizzo

Orari di apertura

non presenti.

0ALTRIANNUNCISIMILI

chicercacasa
quilatrova