Vendita Discoteca - Disco Pub - Locale Notturno Sesto Calende | Chicercacasa.it
Sesto Calende (VA) - Attività di somministrazione

60.000,0

Vendita Discoteca - Disco Pub - Locale Notturno Sesto Calende

via Camillo Benso di Cavour, Sesto calende

Descrizione

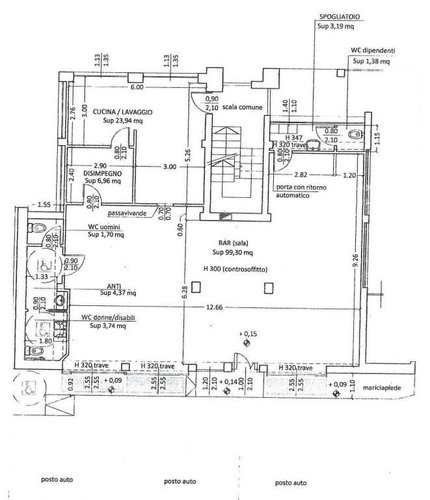
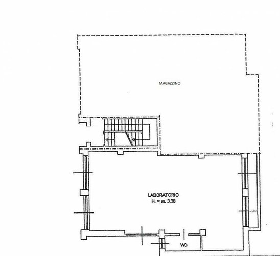
Sesto calende (va) proponiamo attività commerciale di somministrazione. Il locale si compone: piano terra da sala, disimpegno/ripostiglio, cucina, bagno e spogliatoio dipendenti, antibagno e doppio servizio clienti/disabili; piano interrato da due ampi locali laboratorio e magazzino. Elenco attrezzatura: tavoli, sedie, bancone, friggitrice doppia, due piastre, due micro-onde, lavastoviglie, lavabo, tre frigoriferi, armadi in acciaio, scalda panini, piastra induzione, due freezer, un forno. Dotato di aria condizionata, ventilatori, vetri de-hor, antifurto, video-sorveglianza. Visitate il nostro sito www.realtàimmobiliare.it per visionare la scheda completa dell'immobile.

 

Dettagli

Classe Energetica
A+
IPE
0 kW/mc
Mq
247
Alt. sotto trave
0.00
Area Esterna
0
Licenza
-
Parcheggi priv.
-
Parcheggi pubb.
-
Importo Affitto
0
Incasso
-
Tipo Incasso
-
Rich. Valore
-
Locali
1
Tipo proprietà
Non specificato

Email: - Telefono:

Indirizzo

Orari di apertura

non presenti.

0ALTRIANNUNCISIMILI

chicercacasa
quilatrova