Vendita Negozio Malgrate | Chicercacasa.it
IL NEGOZIO INVESTIMENTO

180.000,0

Vendita Negozio Malgrate

via San Leonardo 14, Malgrate

Descrizione

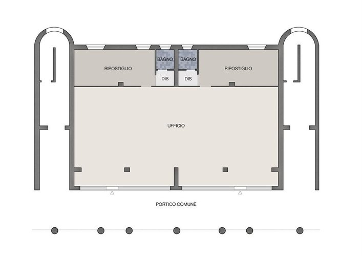
"il negozio investimento" malgrate - questa proposta commerciale rappresenta una reale opportunità in quanto già locata fino ad ottobre 2026; una forma d'investimento ottimale vista l'alta redditività annua che garantisce. la versatilità d'uso è sicuramente un altro aspetto vantaggioso: allo stato attuale, l'immobile, sviluppato su 167 mq, dispone di un ampio ambiente principale ed altri due locali, separati da pareti in vetro e serviti da due bagni; la conformazione consente anche di realizzare uno spazio unico openspace. L'immobile è inoltre frazionabile in due unità completamente separate. viste le molteplici possibilità, varie sono anche le tipologie di attività che può ospitare, spaziando da uffici commerciali o d'intermediazione, società di servizi, poliambulatori medici e veterinari. gli interni si presentano in buone condizioni, con pavimentazione uniforme in ceramica, illuminazione e riscaldamento autonomo gestito con radiatori. cinque vetrine fronte strada favoriscono ottima visibilità pedonale e veicolare; la totale assenza di barriere architettoniche unita all'ampia disponibilità di parcheggio potenziano l'attrattiva di questa soluzione, inserita al piano terra di una palazzina occupata da immobili residenziali e commerciali. anche la zona di riferimento è una realtà mista, in posizione comoda rispetto all'imbocco della ss36 ed a numerosi servizi. ulteriori informazioni in agenzia.

 

Dettagli

Classe Energetica
E
IPE
347,11 kW/KWh/m²a
Mq
180
Alt. sotto trave
-
Area Esterna
-
Licenza
-
Parcheggi priv.
-
Parcheggi pubb.
-
Importo Affitto
-
Incasso
-
Tipo Incasso
-
Rich. Valore
-
Locali
3
Tipo proprietà
Non specificato

STUDIO LECCO TRE S.R.L.

Email: [email protected] - Telefono: 0341287166

Indirizzo

C.so Martiri Liberazione 107

Sito Web

STUDIO LECCO TRE S.R.L.

Orari di apertura

non presenti.

0ALTRIANNUNCISIMILI

chicercacasa
quilatrova