Vendita Plurilocale Albino | Chicercacasa.it
Penta locale in duplex

109.000

Vendita Plurilocale Albino

via Papa Giovanni XXIII, Albino

Descrizione

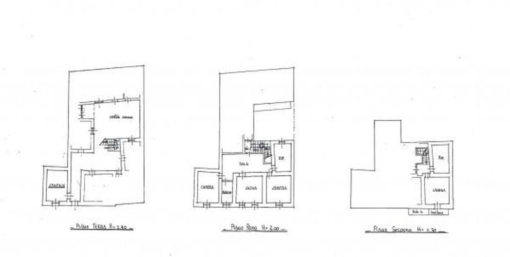
A pochi minuti dal centro, grande appartamento penta locale disposto su due livelli. Ingresso, zona giorno luminosa con sala da pranzo e cucina separata e abitabile, quattro camere da letto e bagno padronale. Cantina annessa al piano inferiore; possibilità di acquisto box auto. Metratura esclusiva! parzialmente da rivedere internamente.

 

Dettagli

Tipologia
Appartamento
Mq
140
Soffitta
No
Bagni
1
Balconi
0
Box
2
Arredamento
Nuovo
Spese cond.
20€ Mensili
Num.posti auto
0
Piano
1
Camere da letto
4
Giardino
Si, Privato
Ascensore
No
Riscaldamento
Autonomo
Locali
5
Tipo proprietà
Intera proprietà
Stato
Ristrutturato
Vendita/affitto
Vendita
Terrazzo
No
Cucina
Abitabile
N.Piani Edificio
2
Portineria
No
Classe Energetica
G
IPE
342,22 kW/mq

SERIANA CASE group

Email: [email protected] - Telefono: 035341995

Indirizzo

Albino, Via Provinciale

Sito Web

SERIANA CASE group

Orari di apertura

da lunedi a venerdi dalle ore 09 alle ore 12.30- dalle ore 14.30 alle ore 19.30 il sabato dalle ore 09 alle ore 12.30, sabato pomeriggio su appuntamento

26ALTRIANNUNCISIMILI

220.000

Albino

 

Graziosa Vill...

Zona Piazzo, strada a fondo chiuso. Villetta a schiera risalente agli anni '80 disposta su tre livelli di 55 mq a piano; ottima vista ed esp

mq. 165 locali 4

SERIANA CASE group

269.000

Albino

 

Villa A Schie...

Proponiamo signorile villa di testa di mq. 260 circondata da grande giardino privato di mq. 400 con vista panoramica sulla Valle del Lujo, c

mq. 260 locali 5

Immobiliare Gavotti Briss…

269.000

Albino

 

Villa A Schie...

Proponiamo signorile villa di testa di mq. 260 circondata da grande giardino privato di mq. 400 con vista panoramica sulla Valle del Lujo, c

mq. 260 locali 5

Immobiliare Gavotti Briss…

230.000

Albino

 

Quadrilocale ...

COMENDUNO DI ALBINO: quadrilocale classe A+ in contesto di sole due famiglie con ingresso indipendente senza spese condominiali posto al pri

mq. 130 locali 4

TUTTOIMMOBILI

229.000

Albino

 

Nuovissimo Qu...

Due passi da tutte le comodità. Appartamento quadrilocale in duplex completamente ristrutturato. Contesto di sole due famiglie; nessuna spes

mq. 150 locali 4

SERIANA CASE group

259.000

Albino

 

Introvabile V...

Zona baciata dal sole, adiacente scuole elementari di Vall'Alta. Villa bifamiliare disposta su tre livelli fuori terra, oltre che a un piano

mq. 180 locali 4

SERIANA CASE group

269.000

Albino

 

Villetta A Sc...

A pochi km da Albino, in elegante contesto di sole quattro villette a schiera, grande soluzione con giardino privato, taverna e box doppio.

mq. 210 locali 4

SERIANA CASE group

249.000

Albino

 

Villetta A Sc...

Due passi dal centro e da tutte le comodità. Graziosa villetta a schiera indipendente disposta su tre livelli fuori terra, in contesto resid

mq. 150 locali 4

SERIANA CASE group

chicercacasa
quilatrova