Vendita Plurilocale Bergamo | Chicercacasa.it
Plurilocale

450.000

Vendita Plurilocale Bergamo

Via Andrea Fantoni, Bergamo

Zona:

Centrale

Atmosfera Case

tel. 035240174

Invia messaggio

Descrizione

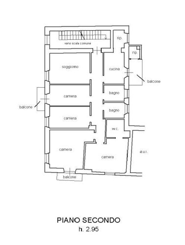
Classe energetica: f - bergamo - stazione<br>atmosfera case propone in esclusiva appartamento pentalocale adibito ad attività commerciale di "casa vacanze" già avviata. A due passi dalla stazione dei treni e dei bus, in zona centralissima e vicina a tutti i principali servizi, con notevoli ed immediati ritorni economici, prenotazioni già fino alla fine dell'anno, tra i primi posti su tutti i portali pubblicitari (booking, airbnb...) e con ottime recensioni. <br>l'immobile risulta completamente ristrutturato sia nell'impiantistica che nelle ottime rifiniture.<br>la soluzione internamente dispone di quattro camere da letto matrimoniali di cui una con bagno padronale privato, altri due bagni, cucina abitabile con accesso diretto al balcone e soggiorno vivibile.<br>termoautonomo con impianto aria condizionata.

 

Dettagli

Tipologia
Appartamento
Mq
140
Soffitta
Non specificato
Bagni
3
Balconi
0
Box
-
Arredamento
Non presente
Spese cond.
40€ Non specificato
Num.posti auto
0
Piano
2
Camere da letto
4
Giardino
No
Ascensore
Non specificato
Riscaldamento
Autonomo
Locali
5
Tipo proprietà
Non specificato
Stato
Ristrutturato
Vendita/affitto
Vendita
Terrazzo
No
Cucina
Abitabile
N.Piani Edificio
3
Portineria
Si
Classe Energetica
F
IPE
198 kW/mc

Atmosfera Case

Email: [email protected] - Telefono: 035240174

Indirizzo

Bergamo, Via Bianzana, 3

Sito Web

Atmosfera Case

Orari di apertura

non presenti.

358ALTRIANNUNCISIMILI

620.000

Bergamo

Città Alta

Porzione Di Casa

Classe energetica: G - EPgl,nren: 268,21 kWh/m² - Bergamo Case propone in vendita in Città Alta porzione di casa con meravigliosa e dominant

mq. 153 locali 4

Bergamo Case

1.500.000

Bergamo

Città Alta colli

Storico Casal...

Classe energetica: G - EPgl,nren: 267,36 kWh/m² - Bergamo Astino, in un'oasi di quiete e natura vendesi storico casale bergamasco in Astino

mq. 800 locali 7

Immobiliare Città dei Mil…

370.000

Bergamo

 

Quadrilocale

Classe energetica: B - EPgl,nren: 43,56 kWh/m² - RIF. Q03 - BERGAMO zona semicentrale a 2 passi dall'Università, a 10 minuti a piedi dalla s

mq. 140 locali 4

S. Bernardino Casa 97 s.a…

1.490.000

Bergamo

Centralissimo

Quadrilocale

Classe energetica: F - EPgl,nren: 149,00 kWh/m² - Bergamo, nella centralissima e prestigiosa VIA TASSO, vendesi elegante appartamento di amp

mq. 311 locali 4

Immobiliare Città dei Mil…

450.000

Bergamo

Centrale

Quadrilocale

Classe energetica: F - BERGAMO - CENTRALE <br>Atmosfera Case propone in Esclusiva, in zona centralissima e comoda per tutti i servizi, in co

mq. 170 locali 4

Atmosfera Case

790.000

Bergamo

 

Dominante Vil...

Classe energetica: G - EPgl,nren: 403,96 kWh/m² - Bergamo Maresana, esclusiva villa singola in posizione panoramica con meravigliosa vista s

mq. 350 locali 8

Immobiliare Città dei Mil…

580.000

Bergamo

Centro

Quadrilocale

Classe energetica: E - EPgl,nren: 145,00 kWh/m² - Bergamo centralissimo città Via Paglia, proponiamo all'ultimo piano di un elegante edifici

mq. 165 locali 4

Immobiliare Città dei Mil…

685.000

Bergamo

Porta Nuova

Attico A May

Via Angelo May ,l' ultima arteria nelle vicinanze del Liceo Secco Suardo e Porta Nuova, Attico di circa 160 mq. in signorile contesto fine

mq. 165 locali 4

Ranucci Immobiliare

chicercacasa
quilatrova