Vendita Quadrilocale Bergamo | Chicercacasa.it
Quadrilocale con box in zona Clementina

175.000

Vendita Quadrilocale Bergamo

via Clementina, Bergamo

Zona:

Borgo Palazzo, Centro, Stazione

Descrizione

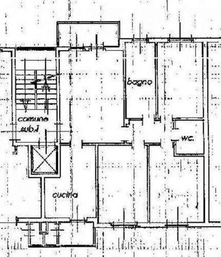
Rif: 1287 - bergamo case propone in vendita a bergamo in laterale di borgo palazzo bassa ampio quadrilocale con box. L'immobile è ubicato in un condominio completamente ristrutturato in tutte le sue parti, è posto al primo piano servito da ascensore e si compone di ingresso, cucina abitabile con balcone, soggiorno con ulteriore balcone, disimpegno, tre camere da letto e due bagni di cui uno finestrato. Completa la proprietà una cantina ed un'autorimessa di 18 mq. Le finiture interne sono di buona qualità, infissi in legno con doppi vetri, ceramica in zona giorno, parquet nelle camere da letto e portoncino blindato. L'immobile si presta per essere abitato da subito. Ideale per chi vuole muoversi sia verso il centro che verso le principali arterie stradali.

 

Dettagli

Tipologia
Appartamento
Mq
120
Soffitta
No
Bagni
2
Balconi
1
Box
1
Arredamento
Non disponibile
Spese cond.
75€ Mensili
Num.posti auto
0
Piano
1
Camere da letto
3
Giardino
Si, Privato
Ascensore
Si
Riscaldamento
Autonomo
Locali
4
Tipo proprietà
Non specificato
Stato
Ristrutturato
Vendita/affitto
Vendita
Terrazzo
No
Cucina
Abitabile
N.Piani Edificio
5
Portineria
No
Classe Energetica
F
IPE
168,15 kW/mq

Bergamo Case

Email: [email protected] - Telefono: 0352652551

Indirizzo

Bergamo, Via Camozzi, 91

Fax

0350662434

Sito Web

Bergamo Case

Orari di apertura

non presenti.

29ALTRIANNUNCISIMILI

220.000

Bergamo

Borgo Palazzo, Centro, S…

Via Spaventa ...

BERGAMO CENTRO - VIA SPAVENTA In posizione centrale e di forte passaggio, disponiamo di negozio di 51 mq con due vetrine su strada posto al

mq. 51 locali -

Royal Immobili & Investim…

220.000

Bergamo

Borgo Palazzo, Centro, S…

Via Spaventa ...

BERGAMO CENTRO - VIA SPAVENTA In posizione centrale e di forte passaggio, disponiamo di negozio di 51 mq con due vetrine su strada posto al

mq. 51 locali -

Royal Immobili & Investim…

280.000

Bergamo

Borgo Palazzo, Centro, S…

Via Tirabosch...

BERGAMO CENTRO - VIA TIRABOSCHI In stabile signorile, servito da ascensore, disponiamo di ufficio/studio di 100 mq posto al quarto piano. At

mq. 100 locali 5

Royal Immobili & Investim…

280.000

Bergamo

Borgo Palazzo, Centro, S…

Via Tirabosch...

BERGAMO CENTRO - VIA TIRABOSCHI In stabile signorile, servito da ascensore, disponiamo di ufficio/studio di 100 mq posto al quarto piano. At

mq. 100 locali 5

Royal Immobili & Investim…

220.000

Bergamo

Borgo Palazzo, Centro, S…

Bergamo

Bergamo - centralissimo - Vendesi spazioso negozio recentemente ristrutturato con doppia vetrina e ampia zona espositiva, soppalco, magazzin

mq. 150 locali 2

SI Servizi Immobiliari

275.000

Bergamo

Borgo Palazzo, Centro, S…

Via Scotti - ...

BERGAMO CENTRO - VIA SCOTTI In elegante palazzo d'epoca servito da ascensore, disponiamo al penultimo piano, di luminoso ufficio ristruttura

mq. 95 locali 3

Royal Immobili & Investim…

220.000

Bergamo

Borgo Palazzo, Centro, S…

Trasversale D...

Al piano terra, negozio d'angolo di metri quadrati 200 (oltre a magazzino interrato di metri quadrati 20) con varie vetrine e con la possibi

mq. 200 locali 4

SG Immobiliare

290.000

Bergamo

S.LUCIA, CONCA D'ORO

Ufficio

L’ubicazione è particolarmente favorevole, a pochi metri dal Tribunale di Bergamo e dal cuore commerciale cittadino. Una soluzione moderna,

mq. 114 locali 3

Immobiliare Mangili

chicercacasa
quilatrova