Vendita Quadrilocale Bergamo | Chicercacasa.it
Quadrilocale

310.000

Vendita Quadrilocale Bergamo

Via Promessi Sposi, Bergamo

Descrizione

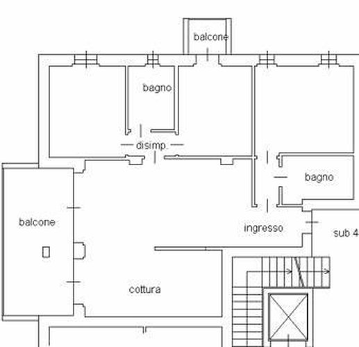
Classe energetica: b - bergamo - villaggio degli sposi<br>atmosfera case propone in esclusiva, in zona tranquilla e collegata a tutti i servizi, strepitoso quadrilocale posto al secondo piano.<br>la soluzione internamente è così suddivisa: ingresso su luminosa zona giorno con accesso diretto ad un ampio terrazzo tramite alzanti scorrevoli, cucina a vista con penisola, disimpegno zona notte, prima camera da letto matrimoniale, bagno di servizio finestrato con doccia, seconda camera da letto, bagno padronale con doccia doppia e terza ed ultima camera da letto.<br>impianto di aria condizionata trial split, alzanti elettrici e riscaldamento a pavimento con regolazione della temperatura in ogni ambiente.<br>completa la proprietà la presenza di ampio box.

 

Dettagli

Tipologia
Appartamento
Mq
120
Soffitta
Non specificato
Bagni
2
Balconi
0
Box
-
Arredamento
Non presente
Spese cond.
100€ Non specificato
Num.posti auto
0
Piano
2
Camere da letto
3
Giardino
No
Ascensore
Non specificato
Riscaldamento
Centralizzato
Locali
4
Tipo proprietà
Non specificato
Stato
Ottimo
Vendita/affitto
Vendita
Terrazzo
No
Cucina
A vista
N.Piani Edificio
0
Portineria
Si
Classe Energetica
B
IPE
60 kW/mc

Atmosfera Case

Email: [email protected] - Telefono: 035240174

Indirizzo

Bergamo, Via Bianzana, 3

Sito Web

Atmosfera Case

Orari di apertura

non presenti.

7ALTRIANNUNCISIMILI

135.000

Brembate di Sopra

 

Trilocale Dup...

Rif: H&C135BR-01 - NUOVA PROPOSTA DA NON PERDERE!! IN POSIZIONE CENTRALE, A DUE PASSI DA TUTTI I SERVIZI, RECENTISSIMO TRILOCALE IN VILLA TI

mq. 80 locali 3

HOUSE & COMPANY 360 DI CO…

135.000

Brembate di Sopra

 

Trilocale Dup...

Rif: H&C135BR-01 - NUOVA PROPOSTA DA NON PERDERE!! IN POSIZIONE CENTRALE, A DUE PASSI DA TUTTI I SERVIZI, RECENTISSIMO TRILOCALE IN VILLA TI

mq. 80 locali 3

HOUSE & COMPANY 360 DI CO…

159.000

Brembate di Sopra

Brembate sopra

Trilo Brembate

Brembate Sopra, Residence la Chiocciola vendesi in piccolo contesto condominiale, trilocale con ampia porzione di sottotetto collegato da s

mq. 100 locali 3

Ranucci Immobiliare

157.000

Brembate di Sopra

 

Trilocale

Brembate Sopra, recente appartamento indipendente, composto da : cucina abitabile salone due camere da letto bagno lavanderia . A piano inte

mq. 95 locali 3

CASA DALMINE S.R.L.

157.000

Brembate di Sopra

 

Trilocale

Brembate Sopra, recente appartamento indipendente, composto da : cucina abitabile salone due camere da letto bagno lavanderia . A piano inte

mq. 95 locali 3

CASA DALMINE S.R.L.

127.000

Brembate di Sopra

 

Quadrilocale ...

VICINANZE BREMBATE SOPRA NEL COMUNE DI ALMENNO SAN SALVATORE (BERGAMO) , DINAMICA IMMOBILIARE propone in vendita AMPIO QUADRILOCALE COSI CO

mq. 115 locali 4

7CASE SERVIZI IMMOBILIARI

127.000

Brembate di Sopra

 

Quadrilocale ...

VICINANZE BREMBATE SOPRA NEL COMUNE DI ALMENNO SAN SALVATORE (BERGAMO) , DINAMICA IMMOBILIARE propone in vendita AMPIO QUADRILOCALE COSI CO

mq. 115 locali 4

7CASE SERVIZI IMMOBILIARI

chicercacasa
quilatrova