Vendita Rustico Albino | Chicercacasa.it
Cascinale bergamasco finemente ristrutturato

280.000

Vendita Rustico Albino

via Concezione 17, Albino

Descrizione

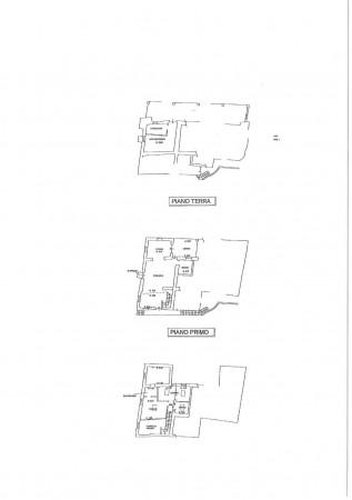
Immerso nel verde, a pochi minuti dal centro storico, tipica porzione di cascina bergamasca completamente ristrutturata nel 2009 con loggiato e terreno circostante. Composta attualmente da due livelli fuori terra. Al piano terra lavanderia e locale cantina. Piano primo: ampissima zona giorno con cucina dalla vista panoramica, bagno e loggiato balcone vivibile; scala interna che porta al piano superiore composto da due ampie camere e bagno padronale. Travia vista sbiancate, finiture di pregio e curato nei minimi dettagli. Unica nel suo genere.

 

Dettagli

Tipologia
Rustico
Mq
170
Soffitta
No
Bagni
2
Balconi
1
Box
0
Arredamento
Nuovo
Spese cond.
-
Num.posti auto
4
Piano
0
Camere da letto
2
Giardino
Si, Privato
Ascensore
No
Riscaldamento
Autonomo
Locali
3
Tipo proprietà
Intera proprietà
Stato
Ottimo
Vendita/affitto
Vendita
Terrazzo
Si
Cucina
Abitabile
N.Piani Edificio
2
Portineria
No
Classe Energetica
E
IPE
135,04 kW/mq

SERIANA CASE group

Email: [email protected] - Telefono: 035341995

Indirizzo

Albino, Via Provinciale

Sito Web

SERIANA CASE group

Orari di apertura

da lunedi a venerdi dalle ore 09 alle ore 12.30- dalle ore 14.30 alle ore 19.30 il sabato dalle ore 09 alle ore 12.30, sabato pomeriggio su appuntamento

14ALTRIANNUNCISIMILI

59.000

Albino

 

Trilocale

Trilocale arredato, situato nelle vicinanze della funivia, posto al primo piano composto da: ingresso, cucina abitabile, balcone con annesso

mq. 85 locali 3

Agenzia Immobiliare Garib…

59.000

Albino

 

Trilocale

Trilocale arredato, situato nelle vicinanze della funivia, posto al primo piano composto da: ingresso, cucina abitabile, balcone con annesso

mq. 85 locali 3

Agenzia Immobiliare Garib…

69.000

Albino

 

Graziosi Bilo...

Zona funivia, posizione tranquilla ma a due passi da tutti i mezzi e servizi. Grazioso bilocale posto al piano terzo ed ultimo piano, in con

mq. 55 locali 2

SERIANA CASE group

49.000

Albino

 

Investimento!!!

Zona funivia. Grazioso monolocale di 40 mq posto al secondo ed ultimo piano. OTTIMO ANCHE COME INVESTIMENTO!!! Zona giorno luminosa con ango

mq. 40 locali 1

SERIANA CASE group

69.000

Albino

 

Super Affare!...

A due minuti dal centro di Albino, ma comodo a tutti i mezzi e servizi, grazioso bilocale in villetta posto al piano terra con ingresso indi

mq. 60 locali 2

SERIANA CASE group

62.000

Albino

 

Trilocale Da ...

ALBINO: in posizione centrale e comoda a tutti i servizi posto al primo piano trilocale da ristrutturare con ampio soggiorno e cucina abitab

mq. 90 locali 3

TUTTOIMMOBILI

62.000

Albino

 

Trilocale Da ...

ALBINO: in posizione centrale e comoda a tutti i servizi posto al primo piano trilocale da ristrutturare con ampio soggiorno e cucina abitab

mq. 90 locali 3

TUTTOIMMOBILI

50.000

Albino

 

Via Mazzini, ...

Via Mazzini, ogni comodità sotto casa. In corte storica appartamento bilocale posto al primo piano di circa 50mq. Composto da ingresso con p

mq. 50 locali 1

SERIANA CASE group

chicercacasa
quilatrova