Vendita Stabile Capizzone | Chicercacasa.it
Con enorme parco

850.000,0

Vendita Stabile Capizzone

indirizzo riservato, Capizzone

Descrizione

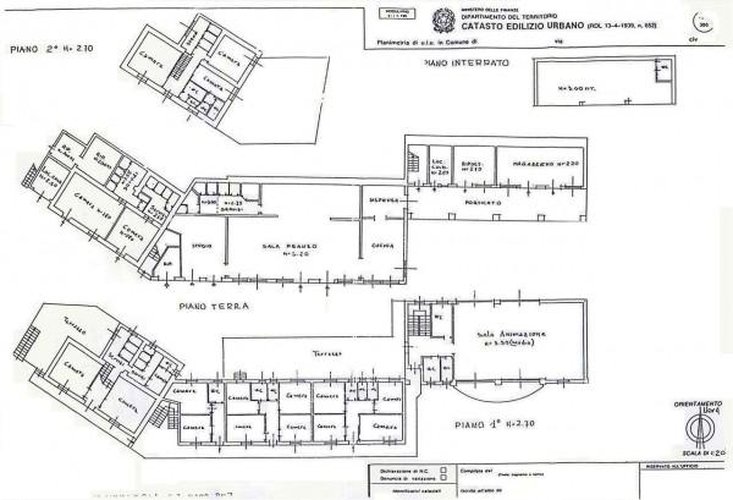
Il complesso è posto su di un lotto di c/a mq. 10.000, ed è costituito da vari corpi di fabbricato tra loro organicamente collegati. Edificio a comprende camere da 2 - 4 posti letto con servizi e al piano inferiore il locale caldaia ed un deposito attrezzi con sovrastante terrazzo. Edificio b comprende al piano terra un soggiorno, una sala pranzo, la cucina con dispensa e i servizi e, al primo piano camere da 4-8 posti letto con servizi. Edificio c comprende al piano terra un portico, locali magazzino, lavoro e altra centrale termica, al primo piano c'è una sala animazione / conferenze con servizi. Edificio d posto al piano giardino accoglie una chiesetta. Il tutto è dotato di ampi piazzali pavimentati e terrazze oltre ad attrezzature sportive e di ricreazione.

 

Dettagli

Classe Energetica
G
IPE
263,27 kW/mq
Mq
1150
Alt. sotto trave
0.00
Area Esterna
0
Licenza
-
Parcheggi priv.
-
Parcheggi pubb.
-
Importo Affitto
0
Incasso
-
Tipo Incasso
-
Rich. Valore
-
Locali
23
Tipo proprietà
Intera proprietà

Pianeta Immobiliare

Email: [email protected] - Telefono: +390354128393

Indirizzo

Ponteranica, Via Ramera

Sito Web

Pianeta Immobiliare

La nostra agenzia tratta la compravendita e la locazione di immobili prevalentemente residenziali. Le zone di nostra competenza sono la città di Bergamo, i paesi limitrofi " nel raggio di 10 km" e tutta la Valle Imagna.

Orari di apertura

lun. - ven. 9-12.30 15.00-19.00 sab. (su appuntamento) 9.00 - 12.00

0ALTRIANNUNCISIMILI

chicercacasa
quilatrova