Vendita Terreno Edificabile Borgo Di Terzo | Chicercacasa.it
fraz. Terzo - Terreno 9 locali € 86.000 T924

86.000,0

Vendita Terreno Edificabile Borgo Di Terzo

via Luzzana, Borgo di Terzo

Descrizione

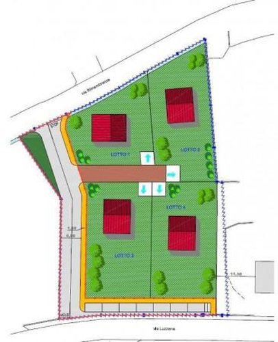
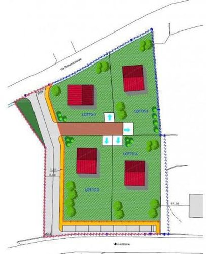
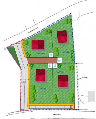
Borgo di terzo fraz. Terzo - splendidi lotti di terreno edificabili per ville singole o bifamiliari, collinare , con leggera pendenza, ottima esposizione panoramica. Possibili accorpamenti e ampliamenti di volumetria o area verde. Da € 86.000 (possibile permuta totale con opere di urbanizzazione) studio co.med. S.r.l. L'indirizzo dell'immobile è indicativo.

 

Dettagli

Classe Energetica
A+
IPE
0 kW/mc
Mq
510
Alt. sotto trave
0.00
Area Esterna
0
Licenza
-
Parcheggi priv.
-
Parcheggi pubb.
-
Importo Affitto
0
Incasso
-
Tipo Incasso
-
Rich. Valore
-
Locali
9
Tipo proprietà
Intera proprietà

STUDIO CO.MED.

Email: [email protected] - Telefono: 035582040

Indirizzo

Albano Sant'Alessandro, Via Garibaldi

Fax

035582160

Sito Web

STUDIO CO.MED.

Studio CO.MED. Immobiliare è una realtà operante nel settore immobiliare da oltre 15 anni nella bergamasca. Studio CO.MED. Immobiliare è in grado di offrirvi una consulenza completa e professionale,riguardante tutte le fasi della vendita o dell'acquisto, che permette di risparmiare tempo e assicura la perfetta riuscita delle transazioni. Studio CO.MED. Immobiliare si serve delle più avanzate tecniche pubblicitarie, partendo dalla pubblicazione delle offerte su tutte le testate locali, fino ad arrivare alla più innovativa tecnologia Internet che ci permette di gestire l'intera Banca Dati in nostro possesso e renderla disponibile On Line con aggiornamenti giornalieri. Questa gestione vi permette di trovare il vostro immobile direttamente su Internet già il giorno successivo alla sua segnalazione. L'obiettivo di Studio CO.MED. Immobiliare è garantire al Cliente la massima qualità, competenza, esperienza e affidabilità.

Orari di apertura

lun/ven 9.00 - 12.30 e 15.00 - 19.30

282ALTRIANNUNCISIMILI

540.000

Bergamo

Borgo Palazzo, Centro, S…

Nuovo Pentalo...

BERGAMO CENTRO – VIA CARROZZAI In prestigiosa ristrutturazione d’epoca, disponiamo di ampio appartamento al rustico di 270 mq così disposto:

mq. 270 locali 5

Royal Immobili & Investim…

690.000

Bergamo

Borgo Palazzo, Centro, S…

Via Mazzi - A...

BERGAMO CENTRO - VIA MAZZI In stabile di pregio di poche unità abitative, in via privata e riservata a fondo chiuso, disponiamo di attico di

mq. 170 locali 4

Royal Immobili & Investim…

690.000

Bergamo

Borgo Palazzo, Centro, S…

Via Mazzi - A...

BERGAMO CENTRO - VIA MAZZI In stabile di pregio di poche unità abitative, in via privata e riservata a fondo chiuso, disponiamo di attico di

mq. 170 locali 4

Royal Immobili & Investim…

1.250.000

Bergamo

Borgo Palazzo, Centro, S…

Via S. Alessa...

BERGAMO CENTRO - VIA SANT'ALESSANDRO In Via Sant'Alessandro, prossimità Piazza Pontida, proponiamo in vendita all'interno di un prestigioso

mq. 295 locali 6

Royal Immobili & Investim…

1.250.000

Bergamo

Borgo Palazzo, Centro, S…

Via S. Alessa...

BERGAMO CENTRO - VIA SANT'ALESSANDRO In Via Sant'Alessandro, prossimità Piazza Pontida, proponiamo in vendita all'interno di un prestigioso

mq. 295 locali 6

Royal Immobili & Investim…

649.000

Bergamo

Carducci

Casa Indipend...

Classe energetica: F - A 8 minuti a piedi da Piazza Pontida, Realizza Valore Immobiliare propone in esclusiva singolare villa libera su tre

mq. 380 locali 5

Realizza srl

490.000

Bergamo

Borgo Palazzo, Centro, S…

Vicinanze Pia...

BERGAMO CENTRO - VICINANZA PIAZZA PONTIDA In elegante palazzo dell'800 servito da ascensore, disponiamo di raffinato appartamento ristruttur

mq. 151 locali 4

Royal Immobili & Investim…

490.000

Bergamo

Borgo Palazzo, Centro, S…

Vicinanze Pia...

BERGAMO CENTRO - VICINANZA PIAZZA PONTIDA In elegante palazzo dell'800 servito da ascensore, disponiamo di raffinato appartamento ristruttur

mq. 151 locali 4

Royal Immobili & Investim…

chicercacasa
quilatrova