Vendita Trilocale Albino | Chicercacasa.it
Grazioso trilocale con box, ben tenuto

135.000

Vendita Trilocale Albino

via Madonna della Neve, Albino

Descrizione

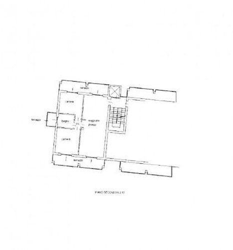
Zona funiva. Grazioso trilocale di 85 mq in esclusivo contesto residenziale di recente realizzazione ben curato e in ordine nelle parti comuni. Secondo piano comodamente servito da ascensore e libero sui tre lati. Ingresso, luminosa zona giorno con cucina a vista (compresa nel prezzo) accesso al terrazzo vivibile ottimamente esposto e splendida vista, disimpegno notte, due camere da letto entrambe servite da balcone e bagno anch'esso servito da balconcino. Completo di box singolo al piano interrato. Finiture di ottimo livello; porta blindata, serramenti legno doppio vetro e parquet nella zona notte. Libero subito, pronto da abitare.

 

Dettagli

Tipologia
Appartamento
Mq
85
Soffitta
No
Bagni
1
Balconi
1
Box
1
Arredamento
Nuovo
Spese cond.
50€ Mensili
Num.posti auto
0
Piano
2
Camere da letto
2
Giardino
Si, Privato
Ascensore
Si
Riscaldamento
Autonomo
Locali
3
Tipo proprietà
Intera proprietà
Stato
Ottimo
Vendita/affitto
Vendita
Terrazzo
Si
Cucina
A vista
N.Piani Edificio
3
Portineria
No
Classe Energetica
E
IPE
119,97 kW/mq

SERIANA CASE group

Email: [email protected] - Telefono: 035341995

Indirizzo

Albino, Via Provinciale

Sito Web

SERIANA CASE group

Orari di apertura

da lunedi a venerdi dalle ore 09 alle ore 12.30- dalle ore 14.30 alle ore 19.30 il sabato dalle ore 09 alle ore 12.30, sabato pomeriggio su appuntamento

50ALTRIANNUNCISIMILI

125.000

Albino

 

Trilocale In ...

Zona residenziale. A pochi minuti da Albino, in corte bifamiliare di recente ristrutturazione (2013) e senza spese condominiali, trilocale i

mq. 85 locali 3

SERIANA CASE group

149.000

Albino

 

Grazioso Tril...

Desenzano; contesto residenziale recente e ben servito. Introvabile e grazioso trilocale libero su tre lati posto al terzo e ultimo piano, c

mq. 80 locali 3

SERIANA CASE group

149.000

Albino

 

Grazioso Tril...

Desenzano; contesto residenziale recente e ben servito. Introvabile e grazioso trilocale libero su tre lati posto al terzo e ultimo piano, c

mq. 80 locali 3

SERIANA CASE group

120.000

Albino

 

Albino Recent...

ALBINO - FRAZIONE VALLALTA: sito in zona molto tranquilla e circondata dal verde, proponiamo recente appartamento TRILOCALE sito al piano pr

mq. 65 locali 3

PICCIOLI IMMOBILIARE

125.000

Albino

 

Trilocale Con...

Bondo. In contesto di sole sei unita' appartamento trilocale, adattabile a quadrilocale di 125mq su due livelli. Composto da ingresso, soggi

mq. 125 locali 3

SERIANA CASE group

125.000

Albino

 

Trilocale Con...

Bondo. In contesto di sole sei unita' appartamento trilocale, adattabile a quadrilocale di 125mq su due livelli. Composto da ingresso, soggi

mq. 125 locali 3

SERIANA CASE group

175.000

Albino

 

Albino Alta -...

Nel cuore di Albino Alta, Patelli Immobiliare propone, in una strada a fondo chiuso ai piedi delle montagne, un appartamento che sa di casa

mq. 100 locali 3

Patelli Immobiliare di Pa…

129.000

Albino

 

Trilocale Con...

Bondo, posizione tranquilla ma comoda ad ogni mezzo e servizio. Trilocale posto al piano primo, baciato dal sole, in contesto di sole quattr

mq. 90 locali 3

SERIANA CASE group

chicercacasa
quilatrova