Vendita Trilocale Calcio | Chicercacasa.it
APPARTAMENTO TRILOCALE CALCIO

65.000

Vendita Trilocale Calcio

via Lazzarini Egidio, Calcio

Descrizione

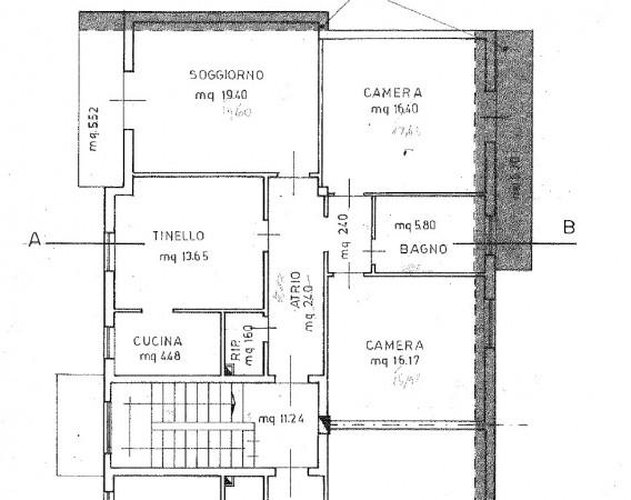
Appartamento trilocale calcio proponiamo in vendita a calcio, in zona residenziale vicinissima al centro e a due passi dal supermercato conad, appartamento trilocale di 100mq posto al piano primo di un piccolo condominio di 6 unità. L'appartamento è composto da: ingresso su corridoio, sala da pranzo con cucinotto, ripostiglio, soggiorno con balcone, disimpegno notte, due camere matrimoniali di cui una con balcone, bagno spazioso. Al piano seminterrato una cantina di 7mq privata e un box singolo molto ampio di 25mq con angolo lavanderia. L'appartamento è stato mantenuto in ottime condizioni, ha un buon grado di finitura con vetri doppi, serramenti in legno, pavimenti in ceramica e zanzariere. Il riscaldamento è di tipo semi-autonomo, regolato da valvole termostatiche per risparmiare e gestire i consumi in modo autonomo. Appartamento perfetto per 5-6 residenze, con possibilità di utilizzare il soggiorno come terza camera da letto. Possibilita' di mutuo al 100% per l'acquisto di questo immobile con rata a partire da 290€/mese!!! la meta' di un affitto! per maggiori informazioni ci puoi trovare nella sede di romano di lombardia (bg) in via nazario sauro 6b, o contattaci al numero 0363903871. Per contatti diretti e visite 3465727729 mirko geom. Brevi le metrature riportate nell'annuncio sono commerciali il tutto salvo errori e/o omissioni. Le fotografie, le misure e le descrizioni del presente annuncio sono puramente indicative e pertanto non costituiscono vincolo contrattuale. Per ulteriori informazioni ci trovi nelle sedi di : -palazzolo sull'oglio (bs) via matteotti 22; - martinengo (bg) largo fratelli sporchia 7/8; - romano di lombardia (bg) via nazario sauro 6/b; - chiari (bs) via cortezzano 61; - palosco (bg) viale papa giovanni xxiii 33: per informazioni telefoniche contattateci al numero 0363/903871

 

Dettagli

Tipologia
Appartamento
Mq
100
Soffitta
No
Bagni
1
Balconi
1
Box
1
Arredamento
Non disponibile
Spese cond.
-
Num.posti auto
0
Piano
1
Camere da letto
2
Giardino
Si, Condominiale
Ascensore
No
Riscaldamento
Autonomo
Locali
3
Tipo proprietà
Non specificato
Stato
Ristrutturato
Vendita/affitto
Vendita
Terrazzo
No
Cucina
Cucinino
N.Piani Edificio
2
Portineria
No
Classe Energetica
G
IPE
209,37 kW/mq

vendoaffittopermuto.it

Email: [email protected] - Telefono: +390363903871

Indirizzo

Romano di Lombardia, via Nazario Sauro

Sito Web

vendoaffittopermuto.it

Chi sceglie di affidarsi al sito vendoaffittopermuto.it per vendere, comprare, permutare o affittare un immobile potrà contare su un’esperienza ultradecennale dei tre soci fondatori: infatti il Rag. Cappelletti fin dal 2000 svolge l’attività di agente immobiliare presso lo Studiocasa Palosco di cui attualmente è responsabile; il Geom. Volpi dal 2007 è agente immobiliare presso lo Studiocasa e per ben tre anni consecutivi (2010-2011-2012) si è posto tra i primi cinque venditori del gruppo Studiocasa composto da oltre 350 venditori; il Rag. Murdolo in attività fin dal 2008 è tra i più giovani agenti immobiliari nella provincia di Bergamo in possesso di regolare patentino per lo svolgimento dell’attività di mediatore immobiliare. Nel mercato immobiliare contano i numeri e le emozioni, aspetti dei quali noi confidiamo di conoscerne i segreti, tale convinzione nasce dalla soddisfazione di oltre tremila clienti ancora attualmente in contatto con noi.

Orari di apertura

9.00-12.30 15.00-19.30

0ALTRIANNUNCISIMILI

chicercacasa
quilatrova