Vendita Trilocale Cenate Sotto | Chicercacasa.it
In quadrifamiliare

184.000

Vendita Trilocale Cenate Sotto

indirizzo riservato, Cenate Sotto

Descrizione

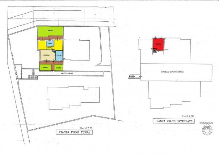
Soluzione indipendente, grazioso trilocale al piano terra con due belle porzioni di giardino, tipologia molto richiesta. Ingresso indipendente con portoncino blindato, soggiorno, cucina abitabile (molto comoda), disimpegno notte, due camere da letto, bagno con vasca, altra porzione di giardino (molto riservato); scala interna privata che conduce nell'interrato con taverna (predisposta per caminetto), collegata direttamente con il box doppio (in larghezza). Tutto ben tenuto, pronto per essere abitato, libero. Riscaldamento autonomo alimentato da caldaia esterna, portoncino blindato, tende da sole motorizzate, aria condizionata nella zona giorno, serramenti in legno con doppio vetro. Posizione residenziale, tranquilla ai piedi della collina, in contesto piacevole, rimanendo comunque in posizione centrale rispetto al paese.

 

Dettagli

Tipologia
Appartamento
Mq
80
Soffitta
No
Bagni
1
Balconi
0
Box
2
Arredamento
Non disponibile
Spese cond.
40€ Mensili
Num.posti auto
0
Piano
0
Camere da letto
2
Giardino
Si, Privato
Ascensore
No
Riscaldamento
Autonomo
Locali
3
Tipo proprietà
Intera proprietà
Stato
Ottimo
Vendita/affitto
Vendita
Terrazzo
No
Cucina
Abitabile
N.Piani Edificio
1
Portineria
No
Classe Energetica
E
IPE
136,26 kW/mq

SG Immobiliare

Email: [email protected] - Telefono: +390354427377

Indirizzo

Via triplok

Sito Web

SG Immobiliare

Orari di apertura

non presenti.

8ALTRIANNUNCISIMILI

157.250

Cenate Sotto

 

Ristrutturazi...

Centralissima al paese, pregevole ristrutturazione composta da 5 unità abitative (2 al piano terra, una al piano primo, una al piano secondo

mq. 85 locali 3

SG Immobiliare

157.250

Cenate Sotto

 

Ristrutturazi...

Centralissima al paese, pregevole ristrutturazione composta da 5 unità abitative (2 al piano terra, una al piano primo, una al piano secondo

mq. 85 locali 3

SG Immobiliare

189.000

Cenate Sotto

 

Trilocale

In prossimita' dei principali servizi che il paese offre, proponiamo in vendita un trilocale in villetta, con ingresso indipendente e giardi

mq. 85 locali 3

POLONI IMMOBILIARE DI POL…

205.000

Cenate Sotto

 

Cenate Sotto ...

CENATE SOTTO villetta a schiera con doppio accesso pedonale e box fuori terra (all'americana), la villetta si distingue per il gradevole con

mq. 170 locali 4

STUDIO CO.MED.

212.000

Cenate Sotto

 

Cenate Sotto ...

In nuova zona residenziale tranquilla proponiamo in vendita nuovo trilocale in villetta, posto al piano terra, con ingresso indipendente. L'

mq. 95 locali 3

POLONI IMMOBILIARE DI POL…

212.000

Cenate Sotto

 

Cenate Sotto ...

In nuova zona residenziale tranquilla proponiamo in vendita nuovo trilocale in villetta, posto al piano terra, con ingresso indipendente. L'

mq. 95 locali 3

POLONI IMMOBILIARE DI POL…

195.000

Cenate Sotto

 

Nuovo Bilocal...

IN BELLISSIMA ZONA RESIDENZIALE TRANQUILLA IN PICCOLA PALAZZINA NUOVO ESCLUSIVO BILOCALE AL PIANO TERRA CON INGRESSO SOGGIORNO AMPIO, CUCINA

mq. 58 locali 2

Geocasa di Cornago geom. …

188.000

Cenate Sotto

 

Porzione Di C...

In zona pedecollinare del paese di Cenate Sotto, vendiamo caratteristica PORZIONE DI CASA INDIPENDENTE (centrale) in stile rustico, recentem

mq. 120 locali 5

Pianeta Immobiliare

chicercacasa
quilatrova