Vendita Trilocale Como | Chicercacasa.it
Appartamento 3 locali - Rif. 301

230.000

Vendita Trilocale Como

indirizzo non presente, Como

Descrizione

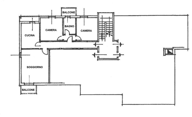
In zona "como sole" appartamento al terzo ed ultimo piano senza ascensore composto da: ingresso, cucina abitabile, ampio soggiorno, disimpegno, due camere, bagno, tre balconi e box. serramenti in pvc con doppi vetri ristrutturato a nuovo nel 2000 spese condominiali comprensive del consumo di riscaldamento

 

Dettagli

Tipologia
Appartamento
Mq
95
Soffitta
No
Bagni
1
Balconi
0
Box
-
Arredamento
Non presente
Spese cond.
-
Num.posti auto
0
Piano
3
Camere da letto
2
Giardino
No
Ascensore
No
Riscaldamento
Centralizzato
Locali
3
Tipo proprietà
Non specificato
Stato
Ottimo
Vendita/affitto
Vendita
Terrazzo
No
Cucina
Abitabile
N.Piani Edificio
3
Portineria
No
Classe Energetica
G
IPE
250 kW/KWh/m²a

Immobilfin s.a.s.

Email: [email protected] - Telefono: 031265315

Indirizzo

Como, Via Mentana, 4

Sito Web

Immobilfin s.a.s.

Orari di apertura

da lunedì a venerdì dalle ore 9:00 alle ore 13:00 e dalle ore 15:00 alle ore 19:00

1ALTRIANNUNCISIMILI

260.000

Cernobbio

 

16/26

Nel caratteristico borgo di Rovenna, frazione collinare di Cernobbio, proponiamo in vendita affascinante casa terra-cielo indipendente di ci

mq. 140 locali -

Punto Immobiliare Lario S…

chicercacasa
quilatrova