Vendita Trilocale Lecco | Chicercacasa.it
Trilocale

160.000

Vendita Trilocale Lecco

corso bergamo, Lecco

Descrizione

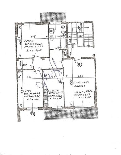
Lecco, località chiuso, vicinanze rivabella lago di garlate, luminosissimo appartamento al primo piano con parziale vista lago, composto da tre locali più servizi, cucina abitabile, ripostiglio, due terrazzini, cantina ed ampio box singolo. Termoautonomo con basse spese condominiali. Libero subito e arredamento compreso nel prezzo.<br>questa descrizione ha valore puramente indicativo e non costituisce elemento contrattuale. Per info: edilcasa lecco via sassi 40 - tel. 0341/353096 - potete contattarci anche tramite "whatsapp" inserendo il n. 0341353096 nei vostri contatti! email: [email protected] - www.edilcasalecco.it

 

Dettagli

Tipologia
Appartamento
Mq
95
Soffitta
Non specificato
Bagni
1
Balconi
0
Box
-
Arredamento
Non presente
Spese cond.
60€ Non specificato
Num.posti auto
0
Piano
1
Camere da letto
2
Giardino
Si, Condominiale
Ascensore
Non specificato
Riscaldamento
Autonomo
Locali
3
Tipo proprietà
Non specificato
Stato
Buono
Vendita/affitto
Vendita
Terrazzo
No
Cucina
Abitabile
N.Piani Edificio
3
Portineria
Si
Classe Energetica
A+
IPE
0 kW/mc

EDILCASA Immobiliare

Email: [email protected] - Telefono: 0341353096

Indirizzo

via S.Sassi 40

Sito Web

EDILCASA Immobiliare

Orari di apertura

non presenti.

37ALTRIANNUNCISIMILI

185.000

Lecco

 

Bilocale

Classe energetica: A4 - LECCO - Viale Turati, in stabile anni '60, verrà realizzato un nuovo piano attico, in classe energetica A4 con PANOR

mq. 67 locali 2

EDILCASA Immobiliare

170.000

Lecco

 

Trilocale

LECCO, Località Germanedo, in zona residenziale e ben servita, APPARTAMENTO al secondo piano, composto da ingresso, soggiorno, cucina abita

mq. 100 locali 3

EDILCASA Immobiliare

145.000

Lecco

 

Trilocale

Classe energetica: C - EPgl,nren: 124,95 kWh/m² - LECCO, rione Bonacina, in zona immersa nel verde, APPARTAMENTO LUMINOSISSIMO con splendida

mq. 100 locali 3

EDILCASA Immobiliare

150.000

Lecco

 

Bilocale

LECCO - CASTELLO, fronte stadio, comodissimo stazione Fs, scuole e centro città, ampio DUE LOCALI di 84 mq, attualmente affittato con contra

mq. 84 locali 2

EDILCASA Immobiliare

175.000

Lecco

 

Vendita, Lecc...

Vendita, Lecco centro, appartamento trilocale posto al piano secondo e composto da ingresso, soggiorno, cucina, due camere da letto, bagno,

mq. 85 locali 3

My Place Italy

180.000

Lecco

 

Quadrilocale

Classe energetica: E - EPgl,nren: 215,90 kWh/m² - LECCO, viale Turati, in zona servitissima a 400 m. dal lungolago, APPARTAMENTO sito al pia

mq. 115 locali 4

EDILCASA Immobiliare

135.000

Lecco

Caleotto

Vendita, Lecc...

Vendita, località Castello in posizione tranquilla e panoramica, a pochi passi dal Centro commerciale “Le Meridiane”, proponiamo luminoso ap

mq. 94 locali 3

My Place Italy

140.000

Lecco

Castello

Appartamento ...

Lecco, a pochi passi dal centro, proponiamo in vendita un luminoso bilocale di 50 mq con giardino ad uso esclusivo. Posto al piano terra in

mq. 50 locali 2

Agenzia Immobiliare Metro…

chicercacasa
quilatrova