Vendita Trilocale Villa Di Serio | Chicercacasa.it
Introvabile trilocale con terrazza vivibile, occasione!

173.000

Vendita Trilocale Villa Di Serio

via Glera, Villa di Serio

Descrizione

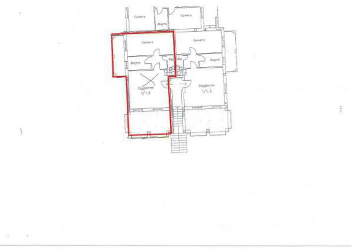
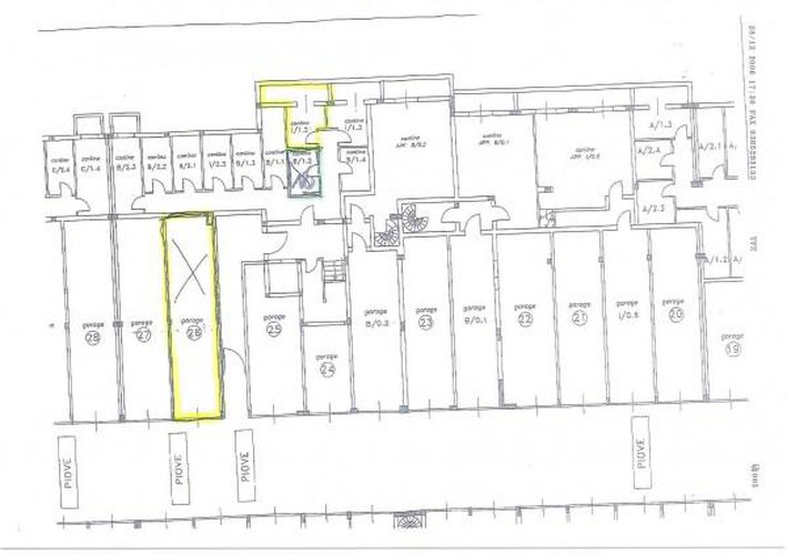
Contesto residenziale di recente costruzione comodamente servito da ascensore, in posizione comoda a tutti i servizi. Splendido trilocale in duplex con terrazzo vivibile, cantina e box doppio in lunghezza. Piano primo composto da ingresso, soggiorno con cucina a vista, accesso al terrazzo vivibile di 20 mq ottimamente esposto; disimpegno, camera da letto, bagno finestrato con vasca e ripostiglio. Scala interna che serve il piano superiore dove troviamo una mansarda open space con altro balcone vivibile, camera matrimoniale e cameretta. Predisposizione per ricavare il secondo bagno. Finiture di ottimo livello, ben tenuta e come nuova! completa di cantina e box doppio in lunghezza. Contesto immerso nel verde e completamente in ordine nelle parti comuni; nessuna spesa straordinaria in previsione. Occasione, da vedere!

 

Dettagli

Tipologia
Appartamento
Mq
100
Soffitta
No
Bagni
1
Balconi
1
Box
2
Arredamento
Nuovo
Spese cond.
45€ Mensili
Num.posti auto
0
Piano
1
Camere da letto
2
Giardino
Si, Privato
Ascensore
Si
Riscaldamento
Autonomo
Locali
3
Tipo proprietà
Intera proprietà
Stato
Ottimo
Vendita/affitto
Vendita
Terrazzo
Si
Cucina
A vista
N.Piani Edificio
1
Portineria
No
Classe Energetica
D
IPE
110,0 kW/mq

SERIANA CASE group

Email: [email protected] - Telefono: 035341995

Indirizzo

Albino, Via Provinciale

Sito Web

SERIANA CASE group

Orari di apertura

da lunedi a venerdi dalle ore 09 alle ore 12.30- dalle ore 14.30 alle ore 19.30 il sabato dalle ore 09 alle ore 12.30, sabato pomeriggio su appuntamento

40ALTRIANNUNCISIMILI

75.000

Bergamo

Borgo Palazzo, Centro, S…

In Via Previt...

Centralissimo – in via Previtali, a piedi in Piazza Pontida, Ottimo investimento, appartamento già arredato € 75.000 Bergamo città, a piedi

mq. 40 locali 1

ITAL HOME BERGAMO

62.000

Bergamo

Monterosso, Valtesse

Monolocale Zo...

Rif: 1258 - Bergamo Case propone in vendita a Bergamo nel quartiere della Conca Fiorita / Monterosso monolocale con solaio. L'immobile è ubi

mq. 32 locali 1

Bergamo Case

78.000

Bergamo

Monterosso, Valtesse

Bilocale

PONTERANICA, Al confine con Bergamo, Appartamento bilocale di 65 metri quadri, posto al secondo ultimo piano di una palazzina anni 60 ottima

mq. 65 locali 2

79.000

Bergamo

Borgo Palazzo, Centro, S…

Nell'antica B...

Bergamo città, Centralissimo, nell'Antica Borgo Palazzo, Servizi fuori casa, a piedi in Centro storico, Vendiamo Nuove soluzioni oggetto di

mq. 60 locali 2

ITAL HOME BERGAMO

79.000

Bergamo

Borgo Palazzo, Centro, S…

Nell'antica B...

Bergamo città, Centralissimo, nell'Antica Borgo Palazzo, Servizi fuori casa, a piedi in Centro storico, Vendiamo Nuove soluzioni oggetto di

mq. 60 locali 2

ITAL HOME BERGAMO

79.000

Bergamo

Monterosso, Valtesse

Bergamo Monol...

OROBICA IMMOBILIARE propone in VENDITA a BERGAMO nel quartiere denominato VALTESSE, ottimo e ben tenuto Monolocale posto al piano secondo e

mq. 47 locali 1

OROBICA IMMOBILIARE DI MA…

85.000

Bergamo

Corridoni, Redona

Bilocale Con ...

Bergamo, confine Gorle, in contesto di piccola palazzina anni 70, disponiamo di Bilocale primo ed ultimo piano, completamente rimesso a nuov

mq. 50 locali 2

Immobiliare Gavotti Briss…

85.000

Bergamo

Corridoni, Redona

Bilocale Con ...

Bergamo, confine Gorle, in contesto di piccola palazzina anni 70, disponiamo di Bilocale primo ed ultimo piano, completamente rimesso a nuov

mq. 50 locali 2

Immobiliare Gavotti Briss…

chicercacasa
quilatrova