Vendita Trilocale Zandobbio | Chicercacasa.it
Trilocale

90.000

Vendita Trilocale Zandobbio

via fratelli calvi, Zandobbio

Descrizione

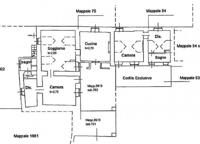
Zandobbio (questo immobile si propone anche come affitto riscatto). In centro paese servitissima posizione a pochi passi da alimentari, poste, tabacchi, palestra, piscina, fermata bus ecc..trilocale di ampia metratura composto da soggiorno, cucina separata, camera matrimoniale, camera, doppi servizi, ampio porticato, giardinetto, no amministratore t3859i (g 195,10 kwh/mqa) € 90.000

 

Dettagli

Tipologia
Appartamento
Mq
158
Soffitta
No
Bagni
2
Balconi
0
Box
0
Arredamento
Non presente
Spese cond.
-
Num.posti auto
0
Piano
0
Camere da letto
2
Giardino
Si, Privato
Ascensore
No
Riscaldamento
Autonomo
Locali
3
Tipo proprietà
Intera proprietà
Stato
Ristrutturato
Vendita/affitto
Vendita
Terrazzo
No
Cucina
Abitabile
N.Piani Edificio
1
Portineria
No
Classe Energetica
G
IPE
195,1 kW/mq

STUDIO CO.MED.

Email: [email protected] - Telefono: 035582040

Indirizzo

Albano Sant'Alessandro, Via Garibaldi

Fax

035582160

Sito Web

STUDIO CO.MED.

Studio CO.MED. Immobiliare è una realtà operante nel settore immobiliare da oltre 15 anni nella bergamasca. Studio CO.MED. Immobiliare è in grado di offrirvi una consulenza completa e professionale,riguardante tutte le fasi della vendita o dell'acquisto, che permette di risparmiare tempo e assicura la perfetta riuscita delle transazioni. Studio CO.MED. Immobiliare si serve delle più avanzate tecniche pubblicitarie, partendo dalla pubblicazione delle offerte su tutte le testate locali, fino ad arrivare alla più innovativa tecnologia Internet che ci permette di gestire l'intera Banca Dati in nostro possesso e renderla disponibile On Line con aggiornamenti giornalieri. Questa gestione vi permette di trovare il vostro immobile direttamente su Internet già il giorno successivo alla sua segnalazione. L'obiettivo di Studio CO.MED. Immobiliare è garantire al Cliente la massima qualità, competenza, esperienza e affidabilità.

Orari di apertura

lun/ven 9.00 - 12.30 e 15.00 - 19.30

33ALTRIANNUNCISIMILI

175.000

Seriate

 

Come Nuovo 3 ...

SERIATE ADIACENZE IN BELLISSIMA ZONA RESIDENZIALE TRANQUILLA BEN SERVITA COME NUOVO ESCLUSIVO SOLEGGIATO ULTIMO PIANO IN PICCOLA PALAZZINA C

mq. 115 locali 3

Geocasa di Cornago geom. …

238.700

Seriate

 

Seriate

VENDITA DIRETTA DAL COSTRUTTORE SENZA MEDIAZIONE : AL 4° piano Nuovo TRILOCALE in classe "A" di 95 mq dotato di ampi terrazzi di 20,50mq a s

mq. 95 locali 3

UFFICIO VENDITE GRUPPO PI…

238.700

Seriate

 

Seriate

VENDITA DIRETTA DAL COSTRUTTORE SENZA MEDIAZIONE : AL 4° piano Nuovo TRILOCALE in classe "A" di 95 mq dotato di ampi terrazzi di 20,50mq a s

mq. 95 locali 3

UFFICIO VENDITE GRUPPO PI…

175.300

Seriate

 

Seriate

VENDITA DIRETTA DAL COSTRUTTORE SENZA MEDIAZIONE : Nuovo TRILOCALE in classe "A" di 78 mq dotato di ampio terrazzo di 10,50 mq a servizio de

mq. 78 locali 3

UFFICIO VENDITE GRUPPO PI…

175.300

Seriate

 

Seriate

VENDITA DIRETTA DAL COSTRUTTORE SENZA MEDIAZIONE : Nuovo TRILOCALE in classe "A" di 78 mq dotato di ampio terrazzo di 10,50 mq a servizio de

mq. 78 locali 3

UFFICIO VENDITE GRUPPO PI…

226.400

Seriate

 

Seriate

VENDITA DIRETTA DAL COSTRUTTORE SENZA MEDIAZIONE : Nuovo TRILOCALE in classe "A" di 96 mq dotato di ampio terrazzo di 12 mq a servizio della

mq. 96 locali 3

UFFICIO VENDITE GRUPPO PI…

226.400

Seriate

 

Seriate

VENDITA DIRETTA DAL COSTRUTTORE SENZA MEDIAZIONE : Nuovo TRILOCALE in classe "A" di 96 mq dotato di ampio terrazzo di 12 mq a servizio della

mq. 96 locali 3

UFFICIO VENDITE GRUPPO PI…

183.700

Seriate

 

Seriate

VENDITA DIRETTA DAL COSTRUTTORE SENZA MEDIAZIONE : Nuovo TRILOCALE in classe "A" di 85 mq dotato di ampio terrazzo di 11,5 mq a servizio del

mq. 85 locali 3

UFFICIO VENDITE GRUPPO PI…

chicercacasa
quilatrova