Vendita Villa Alzano Lombardo | Chicercacasa.it
Splendida e introvabile villa singola, da vedere!

550.000

Vendita Villa Alzano Lombardo

via Risorgimento, Alzano Lombardo

Descrizione

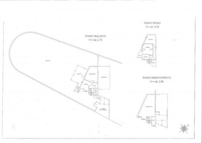
Zona pedecollinare. Signorile villa singola completamente ristrutturata e disposta su tre livelli. Piano seminterrato con spaziosa taverna di 46 mq completa di cucina, zona giorno, locale lavanderia e accesso diretto all'autorimessa doppia in larghezza. Piano terra con soggiorno che si affaccia su terrazza vivibile e portico, cucina abitabile, bagno, ripostiglio e disimpegno. Piano primo: due camere da letto matrimoniali, bagno, altro disimpegno e due balconi. Giardino privato di circa 300 mq. Rifiniture di ottimo livello. Impianto allarme volumetrico. Casseforti murate camino areato in taverna e soggiorno. Pavimentazioni in parquet di rovere e pregiati marmi nei bagni e cucina.

 

Dettagli

Tipologia
Villa
Mq
128
Soffitta
No
Bagni
3
Balconi
1
Box
2
Arredamento
Nuovo
Spese cond.
-
Num.posti auto
0
Piano
0
Camere da letto
2
Giardino
Si, Privato
Ascensore
No
Riscaldamento
Autonomo
Locali
3
Tipo proprietà
Intera proprietà
Stato
Ottimo
Vendita/affitto
Vendita
Terrazzo
Si
Cucina
Abitabile
N.Piani Edificio
2
Portineria
No
Classe Energetica
D
IPE
110,0 kW/mq

SERIANA CASE group

Email: [email protected] - Telefono: 035341995

Indirizzo

Albino, Via Provinciale

Sito Web

SERIANA CASE group

Orari di apertura

da lunedi a venerdi dalle ore 09 alle ore 12.30- dalle ore 14.30 alle ore 19.30 il sabato dalle ore 09 alle ore 12.30, sabato pomeriggio su appuntamento

0ALTRIANNUNCISIMILI

chicercacasa
quilatrova