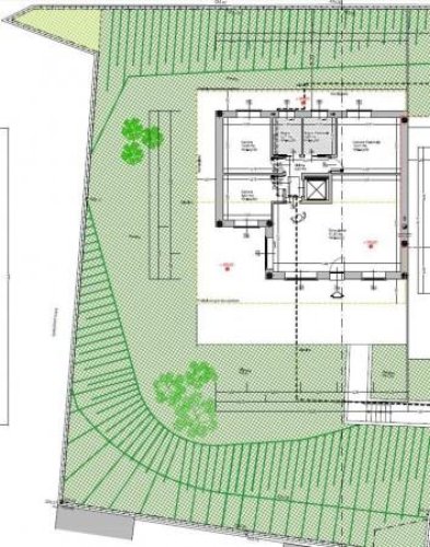
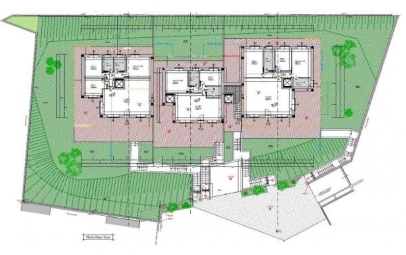
In posizione pedecollinare e comoda a tutti i servizi, nuova villetta indipendente con giardino privato. L'abitazione è progettata e costruita per avere l'ingresso al box doppio direttamente tramite basculante motorizzata, il quale comunica poi con la taverna, cantina e lavanderia posti al piano interrato. Dalla taverna si accede al piano terra tramite scala interna o ascensore privato ad uso esclusivo interno all'abitazione, il quale ci permette di raggiungere comodamente la zona giorno. Una volta raggiunto il piano terra ci troviamo un ampio soggiorno con cucina (separabile) e accesso diretto al porticato esterno e al giardino privato dalla quale si può godere di un'ottima vista panoramica e della massima tranquillità. Spostandoci nella zona notte, troviamo le tre camere da letto ampie ed i 2 bagni. la villetta è assolutamente personalizzabile . Viene inoltre fatto notare che gli appartamenti siti al piano terra saranno tutti liberi su 4 lati, si godrà quindi della massima tranquillità ed indipendenza. Classe energetica: a - ipe: 21.54kwh/mq anno