Vendita Trilocale Curno | Chicercacasa.it
Nuovo trilocale con terrazzo e box a Curno

230.000

Vendita Trilocale Curno

via Toscana, Curno

Descrizione

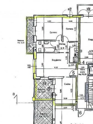
Rif: 977 - bergamo case propone in vendita a curno nuovo trilocale con box. L'immobile è situato in una nuova signorile piccola palazzina in classe b , è posto al piano intermedio ed è composto da ingresso, cucina abitabile, soggiorno con affaccio sul terrazzo, due camere da letto, doppi servizi e balcone. Completano la proprietà una cantina e ed un'autorimessa. Le finiture sono di lusso, i pavimenti sono in parquette, gli infissi sono con doppi vetri, vi è la predisposizione per antifurto e climatizzatore e la cucina è ad induzione. Gli ottimi materiali garantisco un'alta efficienza energetica come il riscaldamento a pavimento, non ci sono barriere architettoniche e l'immobile non è mai stato abitato.

 

Dettagli

Tipologia
Appartamento
Mq
110
Soffitta
No
Bagni
2
Balconi
1
Box
1
Arredamento
Non disponibile
Spese cond.
100€ Mensili
Num.posti auto
0
Piano
1
Camere da letto
2
Giardino
Si, Privato
Ascensore
Si
Riscaldamento
Autonomo
Locali
3
Tipo proprietà
Intera proprietà
Stato
Nuovo
Vendita/affitto
Vendita
Terrazzo
Si
Cucina
Abitabile
N.Piani Edificio
2
Portineria
No
Classe Energetica
B
IPE
54,0 kW/mq

Bergamo Case

Email: [email protected] - Telefono: 0352652551

Indirizzo

Bergamo, Via Camozzi, 91

Fax

0350662434

Sito Web

Bergamo Case

Orari di apertura

non presenti.

209ALTRIANNUNCISIMILI

299.000

Bergamo

Borgo Palazzo, Centro, S…

Ampio Quadril...

Nel cuore pulsante di Bergamo, a due passi da P.za Pontida, disponiamo, in contesto residenziale di inizio anni 90, di ampio appartamento po

mq. 140 locali 4

Immobiliare Gavotti Briss…

299.000

Bergamo

Borgo Palazzo, Centro, S…

Ampio Quadril...

Nel cuore pulsante di Bergamo, a due passi da P.za Pontida, disponiamo, in contesto residenziale di inizio anni 90, di ampio appartamento po

mq. 140 locali 4

Immobiliare Gavotti Briss…

259.000

Bergamo

S. Bernardino

Trilo S. Bern...

Bergamo via S. Bernardino, vendesi appartamento trilocale, tipo attico, posto al quinto e penultimo piano, con vista panoramica, facente, pa

mq. 100 locali 3

Ranucci Immobiliare

250.000

Bergamo

Borgo Palazzo, Centro, S…

Ampio Triloca...

Meraviglioso trilocale al primo piano composto da: ingresso, zona living con moderna cucina a vista che affaccia su un terrazzo di 11mq, zon

mq. 94 locali 3

Ferretticasa spa

289.900

Bergamo

Monterosso, Valtesse

Porzione Di C...

Bergamo , via residenziale e tranquilla,Conca Fiorita-Valtesse, in piccola palazzina di 4 unità, indipendente soluzione di appartamento su d

mq. 144 locali 3

270.000

Bergamo

 

Trilocale

BERGAMO<br>Atmosfera Case propone, in zona centrale e servita, Appartamento Trilocale con doppi servizi, posto al piano quarto.<br>La soluzi

mq. 110 locali 3

Atmosfera Case

320.000

Bergamo

Borgo Palazzo, Centro, S…

Via Tirabosch...

BERGAMO CENTRO - VIA TIRABOSCHI A qualche passo da via XX Settembre, in contesto signorile servito da portineria, proponiamo luminoso e acco

mq. 165 locali 5

Royal Immobili & Investim…

320.000

Bergamo

Borgo Palazzo, Centro, S…

Via Tirabosch...

BERGAMO CENTRO - VIA TIRABOSCHI A qualche passo da via XX Settembre, in contesto signorile servito da portineria, proponiamo luminoso e acco

mq. 165 locali 5

Royal Immobili & Investim…

chicercacasa
quilatrova